Новый модерный жилой комплекс Гранд Плаза г. Бургас секция 3
Бургас

Представляем самый новый и самый модерный жилой комплекс в г. Бургасе.

Локация
Один из самых лучших районов города - ж.к. Горизонт. Где спокойствие сочетается с быстрым доступом до всех удобств города.
Комплекс находится буквально в прямом смысле слова от большого тогового мола, где есть все: магазины, аптеки, развлечения, кинотеатр, фитнес центр, банки, детские центры.

Территория комплекса
Зеленая площадь - 6 дка или более 35% от территории комплекса. Места для отдыха, детские площадки, многофункциональные спортивные площадки и фитнес на улице, алеи для бега и зона для домашних любимцев и это только часть.

Безопасность
Комплекс - закрытого типа. Видео наблюдение и контроль доступа обеспечат безопасность и спокойствие.

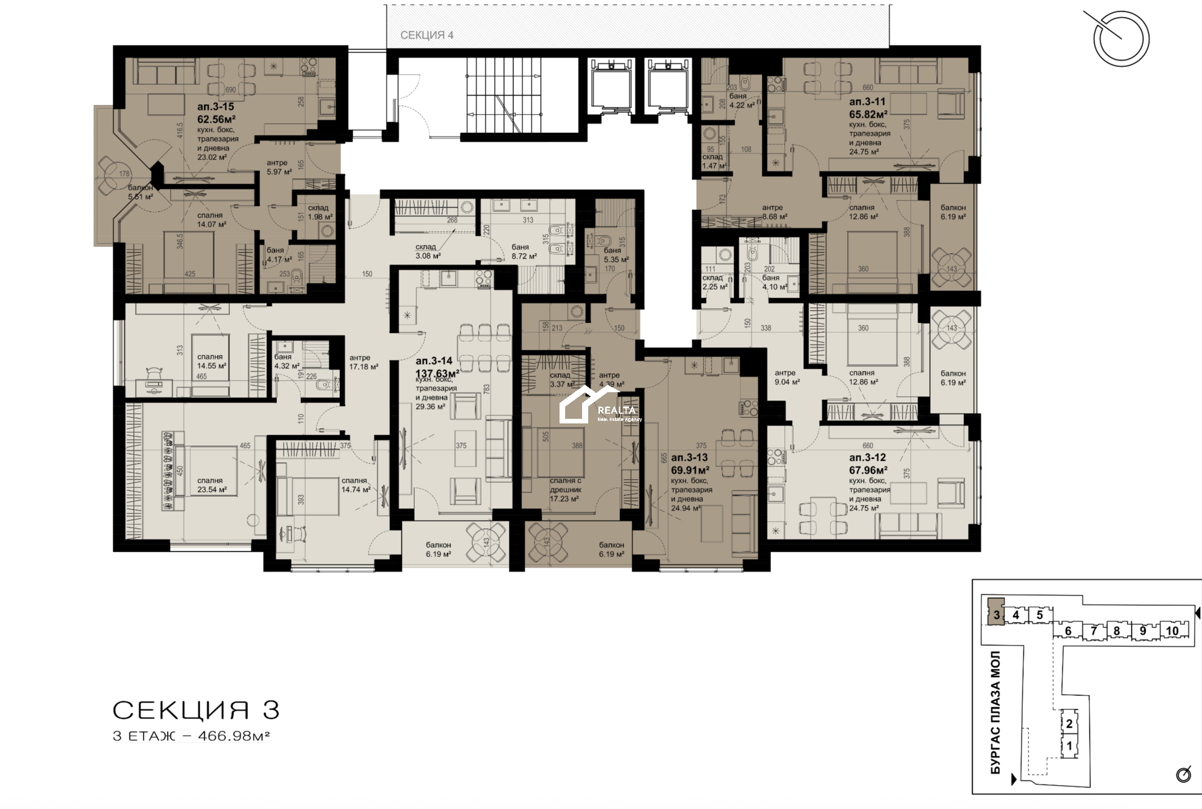
В комплексе будет построено 10 жилых зданий, разделенных на секции. Например сейчас в продаже 3, 4, и 5 секции. По ними будет расположен двух этажный подземный паркин. Всего в комплексе будет построено 596 апартаментов разных типов: студии, апартаменты с одной, двумя и тремя спальнями. 480 подземных парковочных мест, 76 парковочных мест на улице и 28 гаражей. Будут и станции зарядки.

Апартаменты будут передаваться в степени - грубая отделка. (шпаклевка и стяжка).

Комплекс спроектирован внимательно ко всем деталям и предлагает отличную среду для жизни.

Сроки строительства - 36 месяцев от получения разрешения на строительства (сентябрь 2025 года).

Для получения дополнительной информации с нами можно связаться потелефону, вайбер, или вотсап +359 895 84 3002 и  продиктовать Ref №13148

Overview

Custom ID: 13148

Filters

Цена продажи : -
Год постройки: 2028
 Многокомнатный Этаж: -

Interior Details

Вид во двор
Вид на улицу
Грубая отделка
Лифт
Охрана
Фитнес зал
Детская площадка
Комплекс с таксой поддержкой

Последние добавленные объекты

г. Черноморец, Болгария, Бургас
Найдите недвижимость своей мечты в Черноморце! Ознакомьтесь с нашими текущими предложениями на квартиры, дома и участки. Идеальное место для вашего нового дома или загородного дома. Свяжитесь с нами сегодня!
Площадь 1400
Есть вопросы? Напишите нам

Карта